Karlstad

26 + 6 m2 (280 + 65 sq.ft)

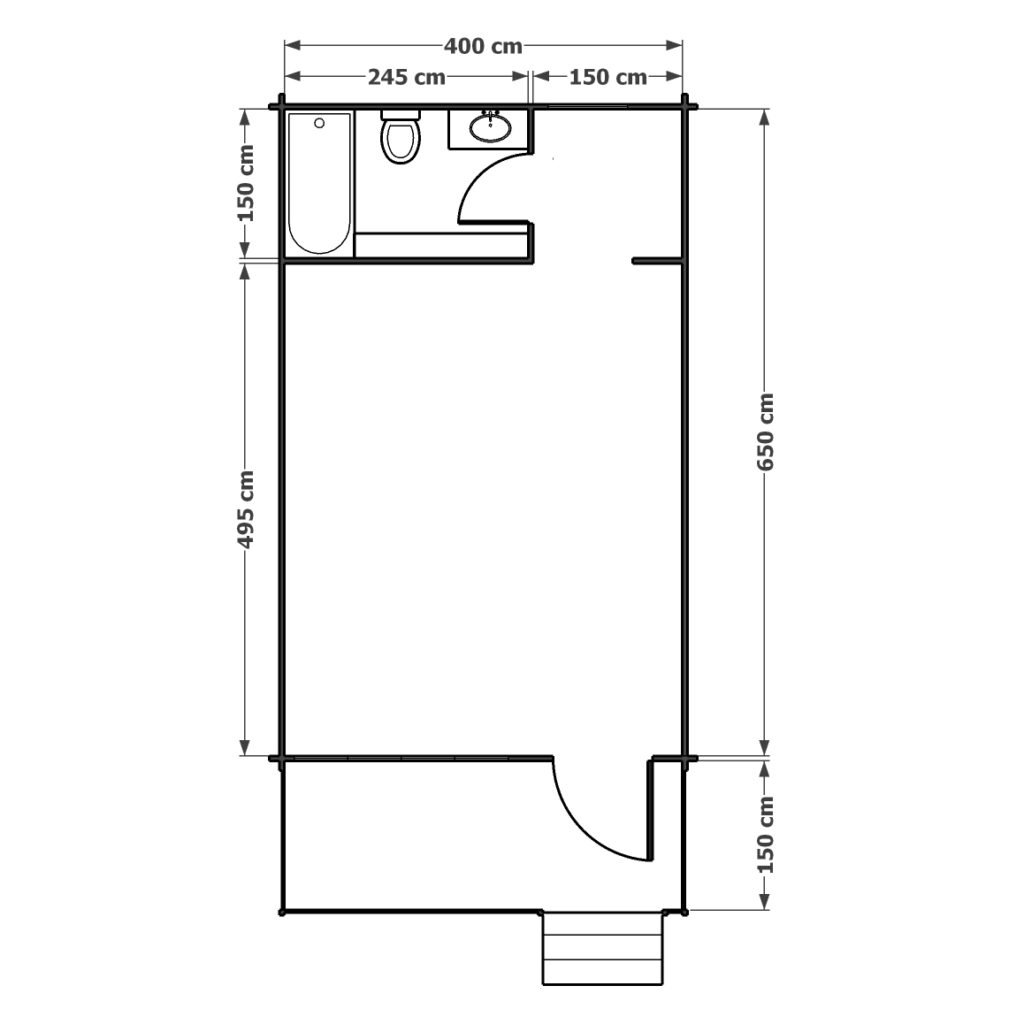
A new wood house model of 26 m2 with a cozy 6 m2 veranda in front. Just the right size for a guesthouse aimed at couples to provide the right sense of spaciousness, comfort and potential luxury.

Specifications

Area :26 + 6 m2
Rooms :1 + 1 Bathroom
Main material :Nordic spruce
Footprint :840 x 420 cm
Ridge height :360 cm
Max interior height :340 cm
Min interior height :228 cm
Roof type :Open gable
Roofing material :Tar sheets
Flooring :Laminate
Veranda :400 x 150 cm
Window types :Double glazed, open-able
Ext door type :Solid wood
Int door type :Solid wood
Foundation :Concrete pillars