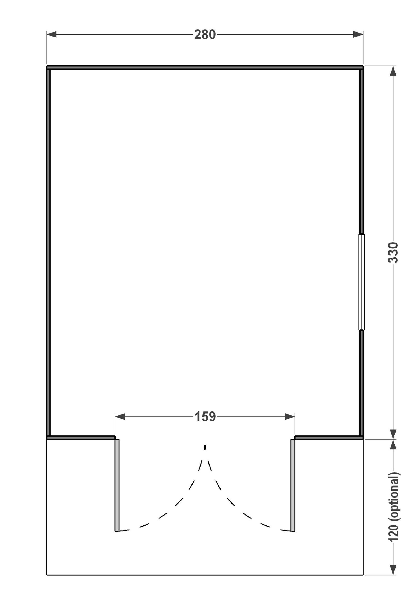
9.2 + 4 m² | 100 + 42 sq.ft.
A small house.
There are no reviews yet.
Your email address will not be published. Required fields are marked *
Your review *
Name *
Email *
Save my name, email, and website in this browser for the next time I comment.
Notifications
Reviews
There are no reviews yet.